Der einfachste Weg zum optimalen Büro.
zu unseren Standorten
1. Analyse
Wie sieht’s denn aus? Wir möchten Ihre individuellen Anforderungen und die örtlichen Gegebenheiten kennenlernen. So finden wir zusammen heraus, was Sie brauchen: In einer unserer 8 Ausstellungen oder direkt bei Ihnen vor Ort.
Bedarfsermittlung:
- → Was brauchen Sie und Ihre Mitarbeiter?
- → Welche Arbeitsabläufe kann die Einrichtung unterstützen?
- → Welche Anforderungen haben Sie an die Arbeitsorganisation?
Beratung:
Wir erläutern die individuellen Vorteile unseres Leistungspaketes, je nach Ihren persönlichen Anforderungen.

Jeder Zentimeter zählt: Wir vermessen Ihre Räume präzise.
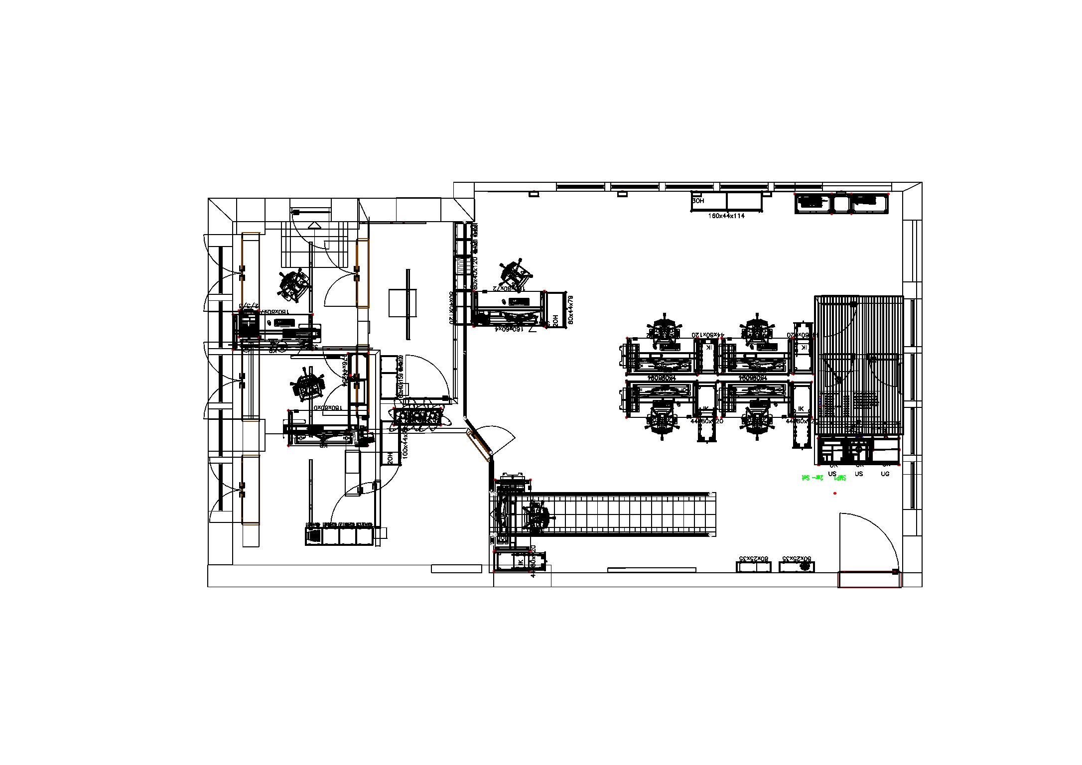
2. Planung
Aus den Erkenntnissen der Analyse entwickeln wir eine detaillierte und CAD-gestützte Büroraumplanung. Auf Wunsch führen unsere Außendienstmitarbeiter auch Stuhlbemusterungen bei Ihnen im Büro durch. Sie bekommen alles erklärt und können, ganz bequem, mit Ihren Mitarbeitern vorausgewählte Stühle probesitzen.
Bei der Planung berücksichtigen wir:
- → Ihre Arbeitsabläufe
- → Ihre persönlichen Vorlieben und Stilvorstellungen
- → Ihre ökonomischen Anforderungen
- → aktuelle ergonomische Erkenntnisse
- → sämtliche DIN- oder Gesundheitsvorschriften

Räume optimal nutzen heißt: Ausreichend Platz lassen, ohne ihn zu verschenken.

Wirtschaftliche Aspekte ergeben sich nicht allein aus dem Anschaffungspreis, sondern auch aus der Flächeneffizienz Ihrer Büroräume.

Mit der CAD-gestützten Planung werfen Sie einen ersten Blick auf Ihre Büroräume von morgen.
3. Umsetzung
Wir packen gerne mit an: Lassen Sie Ihre Möbel einfach von unseren Profis liefern und fachgerecht montieren. Besonders Theken oder spezielle Lösungen können handwerklich durchaus anspruchsvoll sein. Steht alles, zeigen wir Ihnen auch gleich noch die richtige Handhabung – wenn wir schon einmal da sind.
Typisch für uns::
- → Schnelligkeit
- → Termintreue
- → hohe Ausführungsqualität

Ein ergonomischer PC-Arbeitsplatz und ein effizient organisiertes Ablagesystem sind nur zwei Ergebnisse eines gut geplanten Büros.